【SEE SEA PARK】チャレンジショップを出店者を募集しています
更新日令和7年10月7日火曜日
コンテンツID025211
チャレンジショップへの出店者を募集中です! SEE SEA PARK(シーシーパーク)
あなたの一歩を応援します!
チャレンジショップはおおい町で新たに雑貨やアパレル等の物販店、定食屋やお蕎麦屋さん等の飲食店を始められる方を対象とした区画です。利用料を安価に設定し、初めての出店でも安心してチャレンジできるよう、運営のサポートも充実しています。
出店期間は概ね3年以内を目安とします。また、退去後の開業に向けて手厚い支援を提供します。
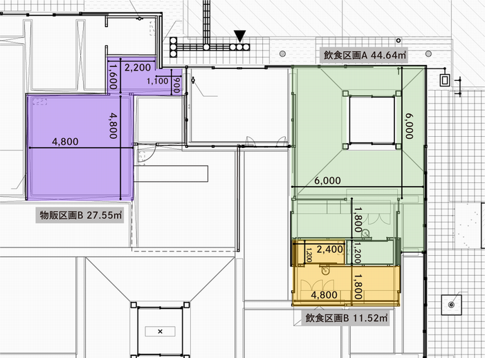
募集区画
◆SEE SEA WEST(チャレンジショップ棟)
今回は飲食店舗向け2区画、物販店舗向け1区画を募集します。
飲食区画には倉庫と販売カウンター、営業許可済みの設備がついています。
 
区画面積と利用料
物販区画B 27.55㎡ (18,000円(税込) /月額)
飲食区画A 44.64㎡ (20,000円(税込) /月額)
飲食区画B 11.52㎡ (12,000円(税込) /月額)
申込締切

出店についての詳細(募集要項、申請書様式など)
「募集要項」や「出店申請書」など詳しくは、
SEE SEA PARK公式サイト(https://see-sea.co.jp)にてご確認ください。
https://see-sea.co.jp/information/uncategorized/7506/
出店者の審査および決定
審査を実施し出店者の決定を行います。
皆さんのチャレンジをお待ちしています!
関連情報
- SEE SEA PARK 公式サイト(新しいウィンドウで開きます。)
- SEE SEA PARK 公式Instagram(新しいウィンドウで開きます。)
情報発信元
- 電話番号:0770-77-9030
- ファックス:0770-77-9040
- メールフォーム
このページに関するアンケート
このページの感想をお聞かせください。





